Why Partnering with JayComp Development Makes Refrigeration Easy
Choosing the right commercial refrigeration system is one of the most critical decisions a business owner in the food service or retail…
Read MoreAre you looking to develop a fully custom floor plan for your convenience, liquor, or grocery store? If so, you have come to the right place. JayComp Development is proud to offer floor plan design services to convenience stores across Oklahoma and Nationwide. We will help you establish your store from the ground up, so no corner is cut. If you would like to learn more about our floor plan design services, give us a call today at 877-843-0183!
Our team of experts wants to ensure that your store has the proper layout. This commitment is why we will work closely with you to draw floor plans and finalize placements for your store. It does not matter whether it is a convenience, liquor, or grocery store. The JayComp team of experts can help you!
Arguably the most important aspect of your store is the utility equipment you need for it to operate. However, these parts are often the most difficult to plan for and locate. Thankfully for you, our experts can plan and develop all of the mechanical systems for your convenience or liquor store.
Every convenience store needs a walk-in refrigerator that stores important items. We design all walk-in elements that your store will need, such as walk-in coolers and freezers. Are you ready to elevate your convenience store? Give JayComp a call today!
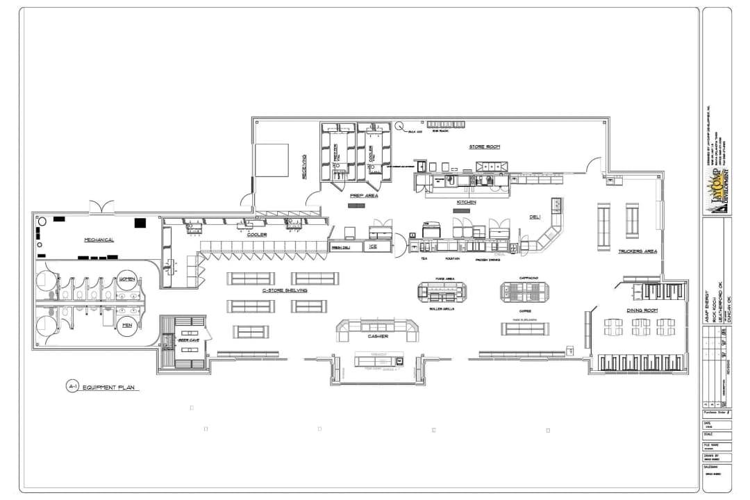
Here at JayComp Development, we take great pride in designing floor plans for convenience, liquor, and grocery stores. We have found that the easiest way to design your store is by starting at the back of your building. This allows us to pinpoint all elements that you will need for your convenience store.

When we design floor plans, we ensure that your entire store is accounted for. This process is intricate and often requires much collaboration. If you are looking to design your store in a specific way, do not be afraid to ask us!

Our team of experts is able to select and arrange the equipment packages needed to make your store a reality. From there, we can design the layout of the interior walls before specifying and locating the plumbing.

In order to create an efficient store, you need to have a stable frame for your business. The JayComp Development team can help you create the best framing for your new store.

Your store will not be able to open if it does not have any electricity! We will ensure the electrical layout is fully operational. We provide the electrical layout and power requirements for the equipment package.

Your store will not be complete without a walk-in refrigeration unit. We design the walk-in store elements with refrigeration calculations and power requirements.

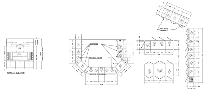
Our team can provide cabinets and shelves for your store. Some of these can come complete with cup condiment and waste receptacles.

If you want your store to stand out from your competition, make sure it has a distinct color palette and graphics. Our experts will determine the best color scheme and branding.

After we further polish it, congratulations are in order! We are more than happy to help you bring your dream store to life.
JayComp Development is a convenience store design company specializing in convenience store floor plan design. Floor Plan Design includes Convenience Store Floor Plans, Foot Traffic Patterning, Equipment Selection, plumbing Considerations, Wall Framing, and Electrical Consideration. For the best service possible, we bring together these elements with Graphics and Decor that compliments the design and bring together a package planned for your precise needs and tastes.
There are several companies in the marketplace that deal in the Convenience Store industry. However, there are few businesses that comprehend what it takes to coordinate a Convenience Store, Grocery Store, or Liquor Store project from concept to finished job. At JayComp Development, you can have all of the segments coordinated and supplied to you from one company!
We designed and developed this convenience store project from the ground up. JayComp Development created the floor plan, designed the convenience store, and oversaw the entire construction process.


The first step in the equipment installation process happens at this point. We call this "Building Dry In". At this point, the building is ready for walk-in coolers to be set!

The walk-in coolers are set into place, becoming part of the interior framework of the building!

The foodservice walk-in freezer and cooler is placed and ready to receive the drop ceiling. We use a white baked enamel finish for easier cleaning.

We design the graphics package and begin the installation. We purposefully suspend canopies over the foodservice equipment and cashier areas.

The construction jumble that happens just before the interior equipment package and retail fixtures are set.

High-quality cabinet installation. At this location, the floors were unstained concrete with a polymer finish applied after the cabinets were set.

Our team creates workflows that operate smoothly outside and inside at a rapid clip!

Interior of the main beverage cooler with backstock shelving and glass display doors with shelving packages installed.

A look at the front of the walk-in cooler section before the vendors have stocked the product.

Once the vendors have set up their products. Having a specific arrangement for your products is critical for maintaining order.

This walk-in holds product at 28°F. We used aged wood and a backlit sign above aged metal on cedar posts for a rustic look.

Inside the beer cave showing product placed on dunnage racks to enhance airflow and allow for cleaning.

Open-air merchandiser for fresh produce alongside the glass door freezer. The white contrast draws your eye to healthy alternatives.

Cooking equipment and Vent Hood system installation. We assemble and set equipment for connection by plumbing and electrical contractors.

The kitchen pre-opening while test cooking is being done to prepare for Lucille's menu!

Panoramic view of the front graphics and color band stretching the length of the store!

Fresh Deli offerings and fountain areas flowing over to the coffee and cappuccino island and into the diner area.

Hot coffee and cappuccino bars are always inviting for patrons!

Fountain drink and frozen bar kept in the best shape possible — nice, clean, and well presented.

Elevated merchandisers hide day-to-day operations and create impulse buy opportunities.

Remote seating gets patrons away from normal foot traffic flow and keeps rush hour patrons moving through the store at a quick pace.

We ensure your bathroom is well lit, takes up adequate space, and is consistently clean!

Let JayComp Development make your Convenience Store dreams a reality with our turn-key Store Development Packages.
Choosing the right commercial refrigeration system is one of the most critical decisions a business owner in the food service or retail…
Read MoreThe world of commercial refrigeration is on the brink of a significant transformation. For decades, the core technology remained relatively…
Read MoreWhen business owners shop for commercial refrigeration, they typically focus on the basics: size, capacity, and price. A reach-in cooler is…
Read MoreYour commercial reach-in coolers are vital assets in your business. They protect thousands of dollars in perishable inventory, ensure you…
Read MoreWhen setting up a business that handles perishable goods, such as a restaurant, convenience store, or grocery, one of the most critical…
Read MoreThe lunch rush hits. The doors to your convenience store swing open, and a steady stream of customers heads straight for the beverage…
Read MoreFloorplans are an essential part of any store's design. A productive floor plan identifies three customer profiles and splits the store into those segments and then facilitates foot traffic patterning to capitalize on impulse opportunities for those patrons. A good floor plan helps people find the goods they need, it helps patrons find goods they didn't think they needed, and increases flow through the store while increasing the owners bottom line.
JayComp Development works hard to supply our customers with practical floor plans that maximize the customer experience while providing owners with a store increased profits through minimized time in the store by the patron and efficient traffic routes to enable the customer to shop the retail space quickly and efficiently.
We understand that the floor plan is the heart of any convenience store layout. A floor plan helps an owner determine the best way to set up the store, giving them control over their store and its features.
Our team works directly with store owners to develop floor plans that work for them and their customers, we base our layout on tried and proven techniques that we have developed from the past 25 years of C-Store Design.
Custom floor plans for a convenience store give customers the efficient in-store experience they're looking for while allowing managers to maintain a store that is easy to stock and clean.
Proper floor plan design in a convenience store can help customers locate goods quickly, giving them access to the products they need. Floor plan design has a basis in the psychology of customer needs.
Our team understands what customers look for before they even enter a store. For this reason, our floor plan design services can help store owners maximize their space while helping customers find what they need.
Custom floor plan design can help a store owner best help their customer base, providing everything they need when they enter the store.
Here are just a few benefits of utilizing a custom floor plan in your convenience store:
Jay Comp Development works closely with store owners to ensure that they have the tools to redesign their floor plan. Our team strategizes innovative solutions to common customer problems as we commit to creating a floor plan that helps retain customers and ensure satisfaction.
Floor plan design is not just about copying the designs of other stores or locations. Instead, it is about capitalizing on what customers want while giving them access to a quick, positive customer experience.
Floor plan design requires a lot of thought and attention to detail, as each floor plan needs to be unique yet familiar to customers and clients.
Jay Comp Development has assisted many different convenience and liquor stores, which has helped them innovate on previous designs to create a new customer experience.
The layout is the first step for floor plan design. A layout does not have to be complex, but it should include a walkway and aisles. This layout is what customers will follow through the store, so a path needs to be clear and easily accessible.
The layout also determines the placement of store equipment to include the size and shape of the walk-in cooler, placement of the restrooms, placement of the deli offerings and fountain areas. We address traffic flow and place the Cashier in key interaction situations so that Customer Service is made first priority.
A layout is driven by the local demographic — what works in New York may not be a correct fit in Dallas, TX. Each store is unique; a store in the same city may have a similar name and look but could be totally different in terms of store layout. When you invest in a project of this nature you need to make sure the design is flexible so that you can flex with the times.
The layout can impact:
With the proper layout, a store owner can ensure that their customers remain satisfied while their store has a sleek, modern look and feel. The convenience store layout is essential since people expect these locations to be simple to navigate. JayComp Development can ensure that your convenience store will have an impactful, efficient layout.
JayComp Development is a convenience shop design firm that specializes in the layout of convenience stores.
Convenience Store Floor Plans, Foot Traffic Patterning, Equipment Selection, Plumbing Considerations, Wall Framing, and Electrical Considerations are all part of the floor plan design process.
We not only design locations but we also supply the equipment and fixture package. This approach ensures that the equipment is specific to the store package, it also ensures the equipment fits the space allowed and matches with the Mechanical Electrical and Plumbing considerations.
To provide the most satisfactory service possible, we combine these aspects with graphics and décor that complement the design to create a package tailored to your specific needs and preferences.
In the Convenience Store industry, there are several businesses from which to choose. Few companies, however, understand what it takes to plan and execute a Convenience Store, Grocery Store, or Liquor Store project from start to finish as well as supply the equipment package. All of the segments can be organized and delivered by JayComp Development!
We look forward to hearing from you! We are experts in store design and construction, foot traffic planning, walk in cooler design, and so much more. Contact Us Today! We love helping customers!
