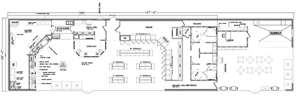
Lakeside Travel Plaza
Full Convenience Store Floor Plan Design by JayComp Development.
- Project Type: Convenience Store
About this Project
JayComp Development designed this convenience store from the ground up. We utilize our extensive knowledge and research into foot traffic, consumer behavior, etc… Plumbing, electric, framing, appliance placement are all part of our convenience store design process. We offer a turn-key solution for new convenience store development.

Related Projects
Country Boy Market
About this Project A modern look and a floor plan designed to compliment lots of foot traffic.Related Projects Quick Contact FormWe look forward to...
Cherokee Travel Plaza
About this Project Full Convenience Store, Gas Station Floor Plan Design.Related Projects Quick Contact FormWe look forward to hearing from you! We...
Allen Quick Pick
Charlie Hodo and His Sister Kathy Invited us up to take a look at their Existing Store in the spring of 2015. They asked us to make their store...













